解析仓顶脉冲除尘器的内部结构-河北卓越环保设备有限公司

卓越环保
13403272333
热门点击: 布袋除尘器|焊烟除尘器|滤筒除尘器|有机硅除尘骨架|仓顶脉冲除尘器|选矿厂除尘器|木工厂除尘器|除尘布袋|有机硅除尘骨架|布袋除尘器厂家|

解析仓顶脉冲除尘器的内部结构

作者:布袋除尘器厂家 发布时间:2017/12/21 9:40:21
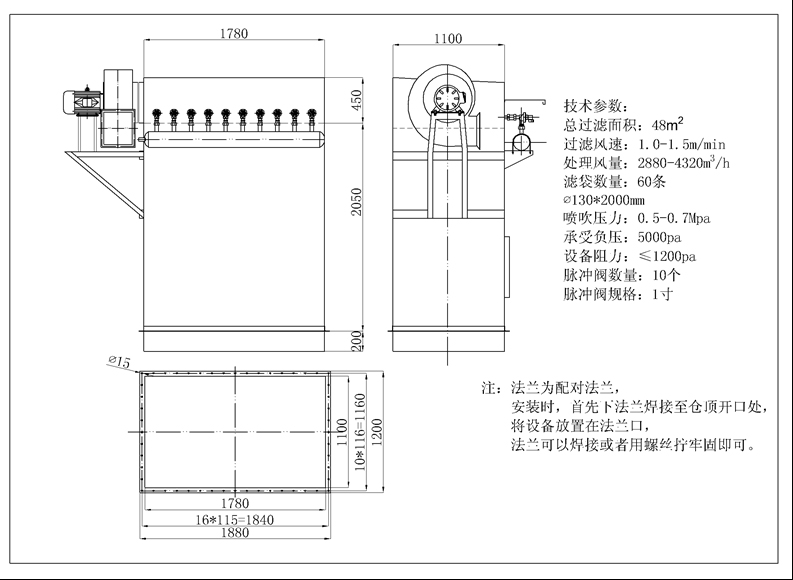
仓顶脉冲除尘器厂家_环保为用户提供仓顶脉冲除尘器结构图,让每一个想了解的用户都能够清楚地知道仓顶脉冲除尘器结构都有哪些部分组成,还可以清晰地知道仓顶脉冲除尘器的外形尺寸等信息。
仓顶脉冲除尘器是比_小巧的_除尘设备,并且使用的行业也比_多,在冶金厂、铸造厂等行业均有使用,该设备的占地面积小、排灰方便、粉尘净化能力高。_厂家为用户提供仓顶脉冲除尘器结构图,让每一个想了解的用户都能够清楚地知道仓顶脉冲除尘器结构都有哪些部分组成,还可以清晰地知道仓顶脉冲除尘器的外形尺寸等信息。

仓顶脉冲除尘器结构组成部分:(无灰斗)

1、过滤室、2、净气室、3、花板、4、除尘器滤袋、5、除尘器袋笼、6、控制箱、7、脉冲阀、8、气包、9、护栏、10、观察孔、11、天窗、12、喷吹管。

仓顶脉冲除尘器结构组成部分(有灰斗)

1、过滤室、2、净气室、3、灰斗、4、花板、5、除尘器滤袋、6、除尘器袋笼、7、控制箱、8、脉冲阀、9、气包、10、护栏、11、观察孔12、天窗、13、喷吹管。

_厂家提供安装仓顶脉冲除尘器的图片:
 
 
仓顶脉冲除尘器结构图纸:
 
 
仓顶脉冲除尘器属于小型除尘器的一种新型产品,我们_厂家的技术人员可以根据每位用户的工况、粉尘浓度、输灰量、等实际参数来设计定制。我们可以_提供设计定制的仓顶脉冲除尘器结构图纸。有其他的问题可以拨打_服务热线:13403272333  我们会二十四小时在线为您服务。 
 

相关产品

HMC单机脉冲布袋除尘器-点式除尘器
HMC单机脉冲布袋除尘器适合用于尘点_小的扬尘场合,所以又可以称之为点式除尘器。HMC单机脉冲布袋除尘器可以处理各种性质的粉尘治理,除尘器采用脉冲喷吹的清灰方式。具有清灰效果好、净化效率高、处理风量大、滤袋寿命长、维修工作量小、运行可靠等等的优点。HMC单机脉冲布袋除尘器广泛用于冶金、建材、机械、化工、矿山等各种工矿企业非纤维性粉尘工业粉尘的除尘净化与物回收。
_涤纶针刺毡除尘布袋-除尘布袋
我厂生产的_涤纶针刺毡除尘布袋除了具有生产普通针刺毡的工艺外,还要求在生产针刺毡的化学纤维中混入导电纤维或不锈钢导电材料,制成了_性能更加优异的_针刺毡除尘布袋。
公司名称:河北卓越环保设备有限公司 厂址:河北省沧州市泊头西环开发区 备案号:冀ICP备2026002766号-1
电话:0317-8315333 传真:0317-8315333 QQ:212309668
联系人:陈经理 手机:13403272333 15130745555 企业网址:http://www.hbaldcc.com

冀公网安备13098102000506号